Compra
Torre a Gironella
Viladomiu Vell, Gironella, Berguedà, Barcelona, Catalunya, 08680, Espanya
  • 550,000€

Visió general

  • Casa
  • Tipus de propietat

Descripció

Torre Colonial anomenada TORRE DEL AMO, a la Colonia Viladomiu Vell, en el terme municipal de Gironella.
La Casa construïda cap el 1900, està tota per reformar. Te una superfície construïda de 1.600 m2, distribuïts de la següent manera:

  • Planta semi-soterrani: Superfície de 408 m2; 9 sales; forat per ascensor i monta-cargues
  • Planta primera: Superfície de 412 m2; 5 sales; 4 terrasses; forat per ascensor i monta-cargues
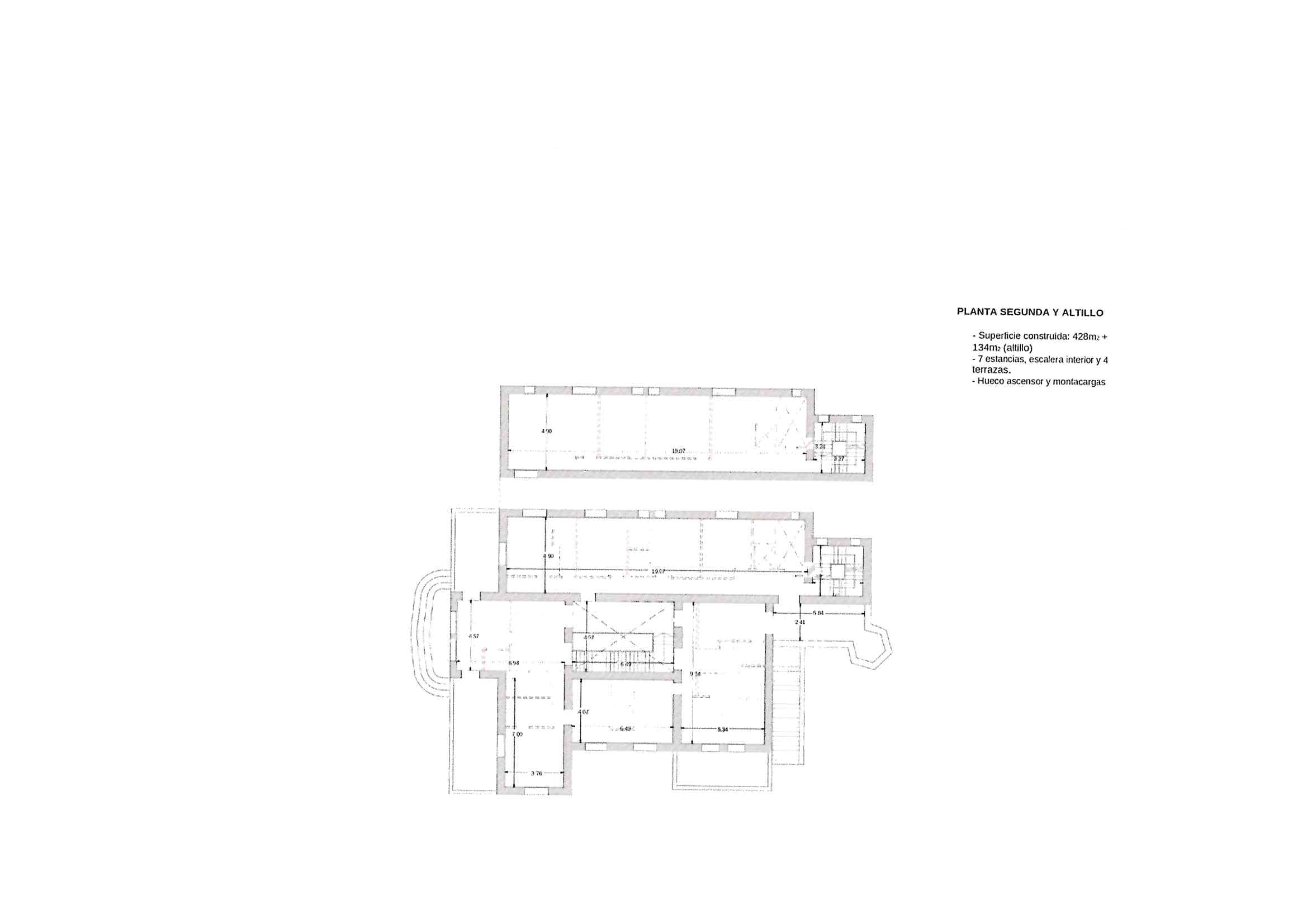
  • Planta segona i altell: Superfície de 428 m2 + 134 m2; 7 sales; escala interior; 4 terrasses; forat per ascensor i monta-cargues
  • Planta Altell: Superfície de 320 m2; 1 sala; escala interior; 2 terrasses; forat per ascensor i monta-cargues

A la casa li pertany també un terreny rústic de 6.000 m2 que pot estar destinat a equipaments de la casa
Es permet fer un ús d’habitatges plurifamiliars i a la planta baixa es pot destinar, a part de residencial, hoteler, comerç, oficines, etc.

La casa es troba en un entorn privilegiat, proper a Reserves Naturals com la del Cadí Moixeró, senders per fer excursions, camps de golf, a 12 km de Manresa, 80 Km de Barcelona i a 50 km de les pistes d’esquí de La Molina i Masella.

Detalls

Updated on desembre 11, 2025 at 5:09 pm
  • Preu: 550,000€
  • Tipus de propietat: Casa
  • Estat de la propietat: Compra

Detalls addicionals

  • Torre senyorial: Per fer habitatge plurifamiliar
  • Gran terreny rústic de 6.000 m2: Molt interessant

Llistats similars

Compare listings

Compare
joana@activacerdanya.com
  • joana@activacerdanya.com